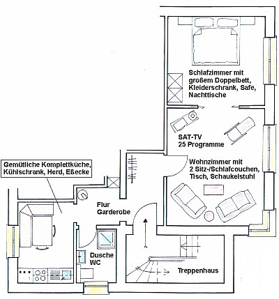
Ferienwohnung 1 für 2 - 4 Personen 60 qm, Teppichboden, Komplettküche mit Ess- & Kochgeschirr, Bettwäsche, Dusch- & Handtücher inklusive.

Freundlich ausgestattet in bester ruhiger Lage mit Burgblick, parken vor dem Haus.

Zurück