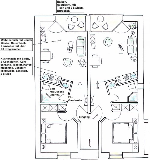
Die Ferienwohnungen 3 und 4 sind neu und gleich ausgestattet mit 1 Wohnzimmer, 1 Schlafzimmer, Balkon, Küchenzeile, Badezimmer.

Zurück